Szeged - Eladó Lakás
Belváros
74 m2
64.900.000 Ft
346325
Igényesen, teljeskörűen felújított, tetőtéri lakás ELADÓ az Árkádhoz közel
Leírás
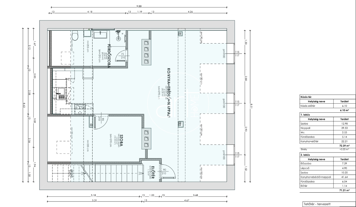
Szegeden az Árkád mögött vált eladóvá egy társasházon belül 2 db önálló lakás.
A jelenlegi hirdetésben szereplő nappali + 1 szobás lakás paraméterei:
- hasznos alapterület: nettó 74 m2 (Bruttó 90 m2)
- 3. emeleten, tetőtérben található (nincs lift)
- a lakásba belépve található egy hangulatos, Árkádra, Dóm térre néző hatalmas nappali, egy teljesen gépesített, beépített konyhabútorral felszerelt igényes konyha és egy onnan nyíló hálószoba, továbbá van egy hatalmas fürdőszoba, wc
- a lakás klimatizált, gáz cirkó-fűtéssel rendelkezik
- minden nyílászáró minőségi fa nyílászáró 3 rétegű üvegezéssel
- most lett kész a lakás teljeskörű, igényes, minőségi anyagokból készült felújítása
- az alatta lévő lakással együtt van egy közös használatú előtere/közlekedője, mindkét lakás innen közelíthető meg, továbbá a földszinten van egy nagy méretű tároló, ami csak ehhez a 2 lakáshoz tartozik
- mindkét lakás külön helyrajzi számmal rendelkezik, önállóan forgalomképes
- a társasház 1990-es években épült, homlokzati szigeteléssel ellátott
- tehermentes, azonnal birtokbavehető, akár azonnal bérbe is adható
Hasonló ingatlanok
Szeged (Felsőváros), Tabán utca
Tágas, napfényes otthon gyerekes családoknak Szeged legjobb rész...
Szeged (Északi városrész), Rózsa utca
Eladó lakás a Rózsa utcában - kiváló elosztás, sok lehetőség!
Szeged (Móraváros)
ÚJ ÉPÍTÉSŰ hőszivattyús, energiatakarékos lakás eladó! 2027 nyár...